




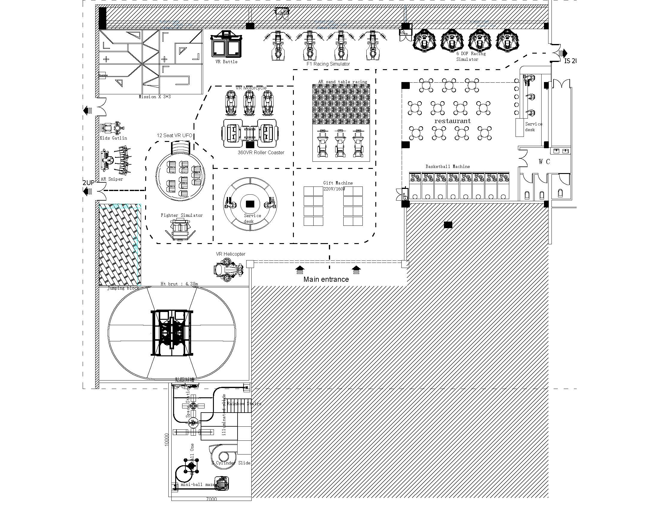
Regarding our layout, we have areas for kids, adults, middle school students, and couples. More importantly, our parent-child families can also have a very good experience in our entire establishment. For our overall traffic flow, customers enter from the left entrance, make a full circle, pass through the racing zone, go through that corridor, and come back to this position. Our space utilization rate is very high. One single flow line forms a complete path from the entrance to the key experience zones, to the corners, and finally to the exit. We have filled the entire flow line with equipment so that our customer base can maximize their feeling of the venue’s atmosphere, and their physical experience can be greatly enhanced.

Catagory | Item | Description | Budget | Total |
| Fixed-asset investment | Machine | 46 Pcs. | $504,285 | $968,410 |
| Payment System | coin/card system | $10,000 | ||
| Indoor Decoration | $127,295 | |||
| Outdoor LED Board | 55.3㎡ | $80,351 | ||
| Transportation | 40HQ*8 Pcs. | $85,320 | ||
| Installation Fee | 1 machine technician; 1 decoration engineer; few labourer | $15,000 | ||
| 25%Tariff | VAT,Custom DUTY | $146,159 | ||
| Air Condition | ||||
| Fire safety equipment | ||||
| Floor | ||||
| Building Construction | ||||
| Rent Deposit | ||||
| Piping | ||||
| Operating cost | Salary | 5 staff | $18,000 | $33,800 |
| Rent | $15,000 | |||
| utilities | $800 |
Montly Income | ||||
Operation Tiem | Serve capacity/ 8 hours | Income | Days | Total |
Working days | 336.6 ( 5% attendance ) | $1,613.4 | 22 | $35,495 |
Weekend | 210.4(25% attendance ) | $8,067 | 8 | $64,536 |
Total | $100,031 | |||

Monthly Expenditure $33800
Rent: $15000
Labors: $18000 (Salary $3600, 5 staff)
Utilities fee :$800 Monthly
Profit: $100031-$33800= $66231

We will contact you within 24 hours, please pay attention to the email with the suffix “@richersimulator.com”.